Terrain à bâtir - à vendre - 6250 Aiseau-Presles 110 000 €

Terrain à bâtir - à vendre - 6250 Aiseau-Presles

Description

Offre à partir de 110.000€. Situé dans une rue paisible de Presles, ce terrain à bâtir offre un cadre idéal pour concrétiser votre projet immobilier.

Il fait partie d'un ensemble de 2 lots mis en vente :

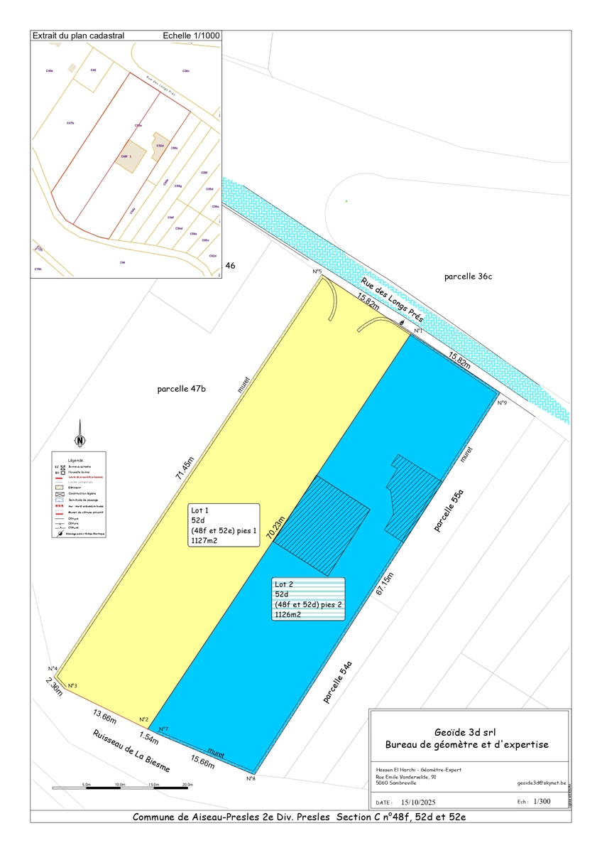
  1. Lot 1 : Surface de 1.127m² avec une largeur de façade de 15,82m
  2. Lot 2 : Surface de 1.126m² avec une largeur de façade de 15,82m

Sa superficie de 1.126 m² avec une façade de 15,82 mètres, permet l’édification d’une maison quatre façades ou semi mitoyenne selon vos envies.

L’orientation sud-ouest à l’arrière garantit un ensoleillement optimal tout au long de la journée, tandis que le relief plat de la parcelle facilite la construction.
Possibilité de bénéficier d'une TVA à 6% sur la construction après démolition des bâtiments existants (ruines).

Ce terrain est libre de constructeur, vous offrant la liberté totale de choisir votre partenaire.

Pour davantage d'informations, contactez AD HOME !

Adresse :

Rue des Longs Prés - 6250 Aiseau-Presles

Général

Référence 7246745
Catégorie Terrain à bâtir
Surface du terrain 1126 m²
Disponibilité à l'acte

À proximité

Magasins (distance (m)) 5000
Écoles (distance (m)) 400
Transports en commun (distance (m)) 500
Magasins Oui
Ecoles Oui
Transports en commun Oui
Autoroute Oui
Autoroute (distance (m)) 11500

Caractéristiques Principales

Profondeur terrain 71
Largeur terrain 15.82

Spécificités terrain

Type d'environnement calme
Type d'environnement 2 campagne
Risque d'inondation 2023 (type innondation) Classe C (faible probabilité dans le climat actuel)

Cadastre

Surface (ha/a/ca) (surf. (ha/a/ca)) 1126
Prendre contact pour le bien : 7246745

* Champs obligatoires

Préférences pour les cookies

La protection de vos données personnelles est importante pour nous. C’est pourquoi nous détaillons ci-dessous les différents services et fonctionnalités du site qui utilisent des cookies et nous vous laissons décider des cookies que vous souhaitez autoriser ou refuser.

Veuillez cependant noter que si vous bloquez certains types de cookies, cela pourrait impacter votre expérience de navigation sur notre site ainsi que les fonctionnalités disponibles.

Nous utilisons des cookies fonctionnels obligatoires pour assurer le bon fonctionnement du site. Ils sont, par exemple, nécessaires pour retrouver le résultat d’une recherche ou enregistrer le choix de la langue.

Certaines fonctionnalités, comme l’affichage de vidéos ou de cartes géographiques, sont assurées via des composants externes développés par des partenaires comme YouTube ou Google. Certains composants utilisent des cookies qui sont susceptibles de permettre à ces tiers de suivre le comportement des internautes afin, par exemple, de réaliser du ciblage publicitaire. L’activation de ces fonctionnalités et des cookies associés est donc soumis à votre consentement.