Appartement - à louer - 5060 Sambreville - 720 €

Appartement - à louer - 5060 Sambreville
1 1 50 m² 1 PEB : C

Description

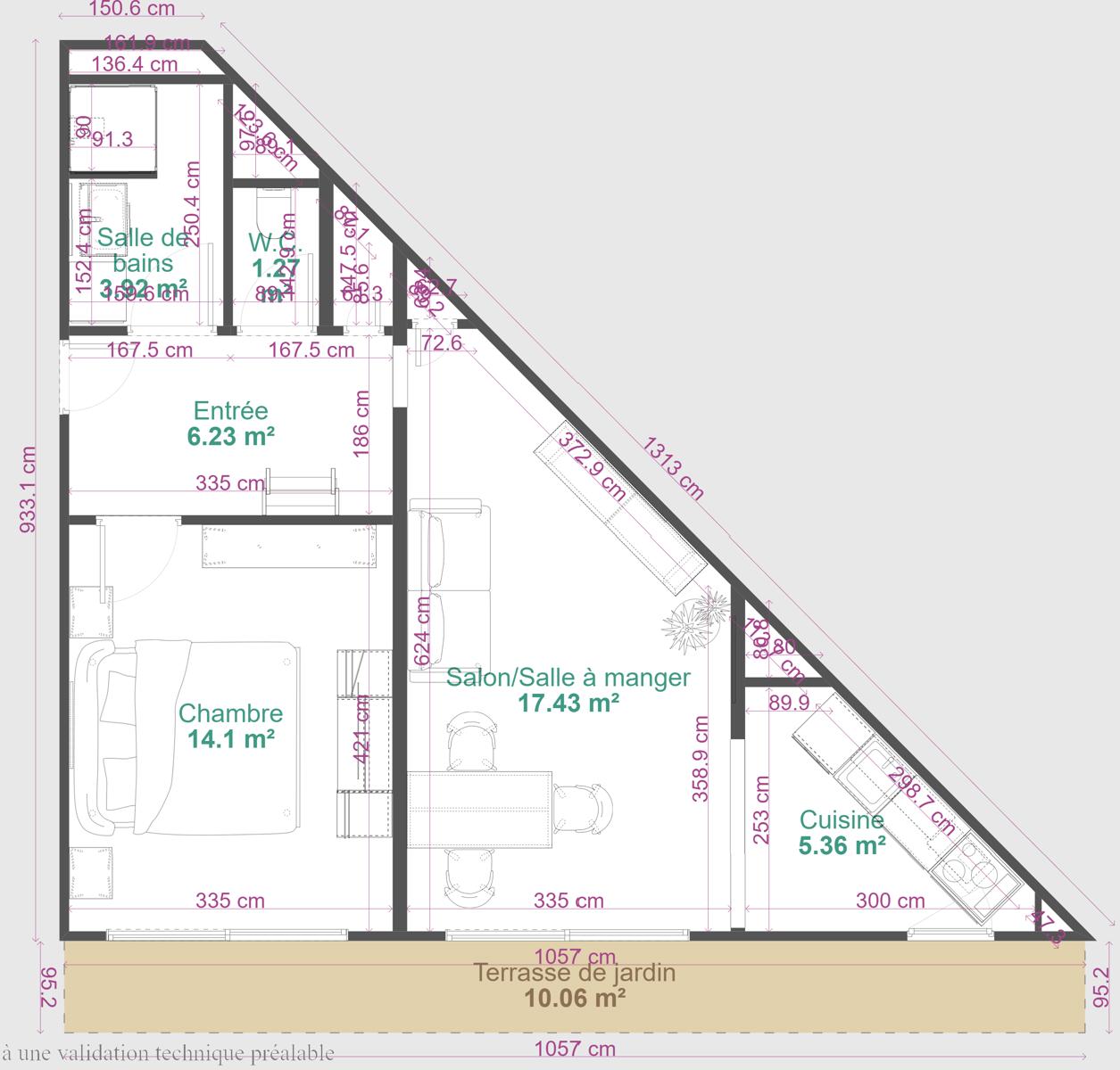
LOYER : 720€ + CHARGES : 100€ (copropriété). Lumineux appartement au 3e étage d'un immeuble stratégiquement placé à proximité de toutes commodités. Il se compose d'un vaste hall de nuit, d'une salle de séjour avec accès à la terrasse, d'une cuisine équipée, d'une vaste chambre, d'une salle de douches, d'un WC indépendant et de débarras. Châssis bois double vitrage, accumulateurs électriques, adoucisseur d'eau, ascenseur et parlophone. Il dispose en outre d’un garage 1 voiture + 1 cave. Compteurs énergétiques séparés. Libre à partir du 1er janvier 2026. Garantie locative de 2 mois de loyer et état des lieux à frais partagés. Ces informations sont délivrées à titre informatif et non contractuel.

Adresse

Rue du Saint Sang 2 Boîte 7 - 5060 Sambreville

Documents

Général

Référence 7284155
Catégorie Appartement
Nombre de chambres 1
Nombre de salles de bain 1
Garage Oui
Terrasse Oui
Surface habitable 50 m²
Disponibilité 01/01/2026

Bâtiment

Année de construction 1984
Parking(s) intérieur (nombre) 1

Nom, catégorie & situation

Etage 3
Nombre d'étages 4

En chiffres

Nbre de toilette(s) (nombre) 1
Chambre 1 (surface) 14.1 m²
Salle de séjour (surface) 16.91 m²
Cuisine (surface) 5.06 m²
Orientation de la terrasse 1 nord-est

À proximité

Magasins (distance (m)) 550
Écoles (distance (m)) 250
Transports en commun (distance (m)) 50
Magasins Oui
Ecoles Oui
Transports en commun Oui
Autoroute Oui
Autoroute (distance (m)) 6600

Charges & Coûts

Charges locataire (montant) 100 €

Equipement de base

Ascenseur Oui
Double vitrage Oui
Chauffage (type) accumulateurs électriques
Type d'ascenseur personnes
Type de cuisine équipée
Sdb (type) douche
Parlophone Oui

Raccordements

Électricité Oui
Télévision par cable Oui
Câbles téléphoniques Oui
Eau Oui

Équipements techniques

Châssis (type) bois

Caractéristiques Principales

Surface de terrasse 1 10 m²

Divers

Cave Oui

Energie

Label PEB (classe) C
PEB E-SPEC (kwh/m²/an) 248
E total (Kwh/an) 14683
PEB code unique 20180411005355
PEB valide jusqu'au (datetime) 11/04/2028
Prendre contact pour le bien : 7284155

* Champs obligatoires

Préférences pour les cookies

La protection de vos données personnelles est importante pour nous. C’est pourquoi nous détaillons ci-dessous les différents services et fonctionnalités du site qui utilisent des cookies et nous vous laissons décider des cookies que vous souhaitez autoriser ou refuser.

Veuillez cependant noter que si vous bloquez certains types de cookies, cela pourrait impacter votre expérience de navigation sur notre site ainsi que les fonctionnalités disponibles.

Nous utilisons des cookies fonctionnels obligatoires pour assurer le bon fonctionnement du site. Ils sont, par exemple, nécessaires pour retrouver le résultat d’une recherche ou enregistrer le choix de la langue.

Certaines fonctionnalités, comme l’affichage de vidéos ou de cartes géographiques, sont assurées via des composants externes développés par des partenaires comme YouTube ou Google. Certains composants utilisent des cookies qui sont susceptibles de permettre à ces tiers de suivre le comportement des internautes afin, par exemple, de réaliser du ciblage publicitaire. L’activation de ces fonctionnalités et des cookies associés est donc soumis à votre consentement.